La Clusaz, Auvergne-Rhône-Alpes
Frankrijk, Auvergne-Rhône-Alpes, La Clusaz
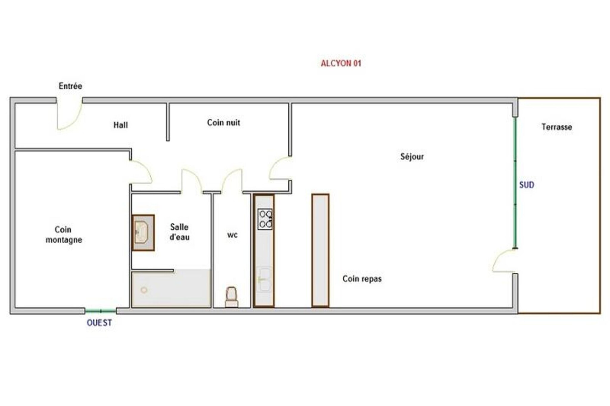
Woning, samen met zijn gezellige en functionele indeling, is ideaal voor 4-5 gasten. De accommodatie beschikt over een slaaphoek met een verhoogd eenpersoonsbed (niet aanbevolen voor kinderen onder de 6 jaar), evenals een berghoek met een tweepersoonsbed. In de woonkamer staan ??twee eenpersoonsslaapbanken, die extra slaapruimte bieden. Een terras op het zuiden biedt een schilderachtig uitzicht op de omliggende bergen. Het appartement is huisdiervriendelijk, huisdieren zijn tegen een toeslag toegestaan ??en het is een rookvrij appartement. Gasten vinden er alle nodige voorzieningen voor een comfortabel verblijf, waaronder een flatscreen-tv, een skikluis en een parkeergarage. Dekbedovertrekken, lakens en kussenslopen zijn aanwezig, en extra beddengoed kan indien nodig worden gehuurd. Verwarming wordt geleverd via elektrische vloerverwarming, waardoor warmte tijdens de koudere maanden wordt gegarandeerd.
De residentie ligt bovenaan het dorp en biedt een uitstekende nabijheid tot lokale bezienswaardigheden, met de Bossonnet Telemix, stoeltjeslift en skitelescoop op slechts 250 meter afstand, waardoor u gemakkelijk toegang heeft tot skiën en andere bergactiviteiten. De shuttlehalte is tijdens de wintermaanden gunstig gelegen tegenover de residentie, met een wandeling van 240 meter in de zomer. Winkels zijn ook vlakbij, zodat u gemakkelijk toegang heeft tot de essentiële zaken. Voor degenen die met het openbaar vervoer reizen: het SNCF-treinstation van Annecy ligt op 33 km afstand en het busstation La Clusaz ligt op ongeveer 1,05 km van de accommodatie. Door de centrale ligging kunnen gasten genieten van de rustige sfeer terwijl ze dicht bij alle noodzakelijke voorzieningen en vervoer zijn.
Het appartement is uitgerust met een volledig functionele kitchenette met een koelkast van 129 liter, keramische kookplaat, magnetron, mini-oven en vaatwasser, zodat gasten hun eigen maaltijden kunnen bereiden. De badkamer is voorzien van een inloopdouche, wastafel en handdoekdrogerradiator voor extra comfort. De woonkamer is ontworpen voor ontspanning, met een eetruimte en een flatscreen-tv, terwijl het terras op het zuiden een prachtig uitzicht biedt op de omliggende bergen. Extra voorzieningen zijn onder andere een garageplaats (met specifieke afmetingen), een skiberging voor wintersportuitrusting en elektrische verwarming voor warmte door het hele appartement. Deze op zichzelf staande unit biedt zowel functionaliteit als comfort voor diegenen die op zoek zijn naar een uitje in de bergen.
Voorzieningen
Op de kaart
Praktische informatie
Aankomst en vertrek
- Inchecken na 3:00 PM (Data: 10 maart 2026 - 10 maart 2027)
- Uitchecken eerder 10:00 AM (Data: 10 maart 2026 - 10 maart 2027)
Algemene voorwaarden
Omdat DogsIncluded met verschillende partijen samenwerkt, kunnen de voorwaarden per woning verschillen. Hieronder kun je lezen wat de annuleringsvoorwaarden zijn bij dit vakantiehuis in La Clusaz, Auvergne-Rhône-Alpes.
Belangrijkste punten:
- tot 43 dagen voor de aankomstdatum slechts 0% annuleringskosten
- mogelijkheden om je reservering nog om te boeken
Annuleringsvoorwaarden
- Voor de annulering tot en met de 43ste dag voor de aankomstdatum: 0% van de reissom.
- In geval van annulering van 29 tot en met 43 dagen voor aankomstdatum: 40% van de reissom.
- In geval van annulering van 1 tot en met 29 laatste dag voor aankomstdatum: 90% van de reissom.
- Voor latere annulering of bij het niet verschijnen wordt de volle prijs in rekening gebracht.
Gunstigere omboekingsmogelijkheden
Je kunt hogere annuleringskosten ook voorkomen door om te boeken. Je kunt de boeking voor dit huis wijzigen (periode en/of bestemming) tegen gereduceerde annuleringskosten.
Net zoals bij annuleren stijgen deze wijzigingskosten naarmate de aankomstdatum dichterbij komt. Hierbij worden dezelfde termijnen gehanteerd als bij de annuleringsvoorwaarden (t/m 42e dag, 42 t/m 29 dagen, etc...).
Omboeken kan alleen naar een andere periode in hetzelfde huis of naar een andere periode en/of bestemming in een vakantiehuis uit het huizen-aanbod van dezelfde partner. De hoogte van deze wijzigingskosten kunnen variëren per huis en kunnen altijd bij ons opgevraagd worden als je daadwerkelijk wenst om te boeken.
Beoordelingen
FAQ
Als u wilt weten of meer honden hier zijn toegestaan, kunt u dit altijd doen via een verzoek. U doet dit via de normale reserveringsmethode (website). Dit is de enige manier waarop we een verzoek voor meer honden kunnen verwerken.
Een verzoek om een accommodatie verplicht u natuurlijk nergens op. Maar het voordeel voor u als klant is dat u een optie op de accommodatie krijgt totdat deze bekend is of het aantal honden is toegestaan. Als dit een probleem veroorzaakt, wordt het verzoek gratis geannuleerd. En we kunnen indien gewenst een alternatief aanvragen. We kunnen daarom nooit van tevoren aangeven of er al dan niet meer honden zijn toegestaan.
Dogs hierin heeft ook geen lijsten met huizen waar meer dan het standaard aantal honden is toegestaan (hangt af van verschillende factoren).
Wil je toch graag meer informatie over een huis dan is dit mogelijk door via de website een reserveringsaanvraag te doen. Zo'n reserveringsaanvraag verplicht je natuurlijk tot niets.
In het boekingsproces is er ruimte voor extra vragen die we aan de huiseigenaar kunnen doorgeven. Bijvoorbeeld: - is de tuin helemaal omheind en echt "ontsnappings-proof"? Wat bedraagt de borgsom? Is het geschikt voor minder validen? etc.
Er zijn ook vragen waarop we nooit antwoord kunnen geven, zoals: Wat zijn de energiekosten?
Energiekosten worden berekend naar verbruik. Daarom kunnen we hier geen antwoord op geven. Want wij weten net zo min als jij vantevoren hoeveel energie je zult gaan gebruiken. Dat is natuurlijk ook van diverse aspecten afhankelijk, zoals seizoen, mate van gebruik, veel/weinig apparatuur, aantal personen, etc.... De energiekosten zijn nooit onredelijk hoge bedragen en worden vaak gewoon verrekend met de borg. Een tip: informeer bij aankomst naar de eenheidsprijs en noteer de meterstanden. Dit voorkomt onduidelijkheid achteraf.
Antwoorden op extra vragen over een specifieke accommodatie krijg je dus altijd door middel van een reserveringsaanvraag via de website.
Het extra voordeel voor onze cliënten is, dat zij op deze manier van ons direct een optie op de accommodatie krijgen totdat wij het antwoord op de vragen hebben uitgezocht. Een reservering met extra vragen is daarom ook nooit definitief. Pas wanneer alle door jou gewenste informatie door ons is uitgezocht, vragen we je of we de reservering definitief mogen maken.
Uit eigen ervaring weten wij inmiddels dat je met loslopen, strandbezoeken en wandelgebieden in het buitenland gewoon een beetje praktisch om moet gaan. Er is altijd wel een plek te vinden waar je hond bijvoorbeeld los kan wandelen, het strand op mag of kan zwemmen.
Soms is het handig om hier ter plekke even navraag over te doen en misschien moet je er een stukje verder voor rijden. Maar dat is in Nederland natuurlijk niet anders.
En, hoort het niet een beetje bij de charme van de vakantie dat je samen op avontuur gaat om de omgeving te verkennen?
Als je wel graag voordat je op vakantie meer specifieke lokale informatie wilt, kun je het best contact opnemen met de plaatselijke vvv. Via Google kun je altijd wel het dichtstbijzijnde toeristenkantoor vinden.
Of vraag ons gratis informatie pakket aan. Hierin kun je per land ook alle informatie nog eens nalezen en vind je links waar je toeristische informatie kunt vinden.
Tot slot bieden wij je tijdens het maken van een reservering de gelegenheid om ons en/of de huiseigenaar vragen te stellen. Hier kun je uiteraard je specifieke vraag stellen. Echter, hou er rekening mee dat sommige (detail)vragen ook voor een huiseigenaar soms te lastig zijn om te beantwoorden.
Begin met boeken
Wanneer
Gasten
Gasten
Honden
Aantal huisdieren
1
Volwassenen
18 jaar oud
1
Kinderen
3 - 17 jaar oud
0
Baby's
0 - 2 jaar oud
0
Nog geen kosten




















